
4 Beds
3 Baths
2,447 SqFt
4 Beds
3 Baths
2,447 SqFt
Open House
Thu Apr 23, 12:00pm - 2:00pm
Sat Apr 25, 1:00pm - 3:00pm
Sun Apr 26, 1:00pm - 3:00pm
Key Details
Property Type Single Family Home
Sub Type Single Family Residence
Listing Status Active
Purchase Type For Sale
Square Footage 2,447 sqft
Subdivision Madero
MLS Listing ID 21243130
Style Contemporary/Modern,Craftsman
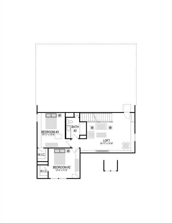
Bedrooms 4
Full Baths 3
HOA Fees $550/ann
HOA Y/N Mandatory
Year Built 2025
Lot Size 5,749 Sqft
Acres 0.132
Lot Dimensions 50x115
Property Sub-Type Single Family Residence
Property Description
Location
State TX
County Denton
Community Club House, Community Pool, Curbs, Jogging Path/Bike Path, Playground, Sidewalks
Direction Going North on I-35, take the exit for Hwy 287 North. Go north on Willow Springs Road. Follow to Sendera Ranch Road and turn right. Turn right on Rosaderos Road and another right onto Meso Maya Lane and the Sales Center is located on the left at 15308 Meso Maya Lane
Rooms
Dining Room 1
Interior
Interior Features Open Floorplan, Pantry, Vaulted Ceiling(s)
Heating Central, Zoned
Cooling Ceiling Fan(s), Central Air, Zoned
Flooring Carpet, Luxury Vinyl Plank, Tile
Appliance Built-in Gas Range, Dishwasher, Microwave, Tankless Water Heater
Heat Source Central, Zoned
Laundry Electric Dryer Hookup, Utility Room, Full Size W/D Area, Washer Hookup
Exterior
Exterior Feature Covered Patio/Porch, Rain Gutters
Garage Spaces 2.0
Fence Back Yard, Wood
Community Features Club House, Community Pool, Curbs, Jogging Path/Bike Path, Playground, Sidewalks
Utilities Available City Water, Curbs, Sidewalk
Roof Type Composition
Total Parking Spaces 2
Garage Yes
Building
Story Two
Foundation Slab
Level or Stories Two
Structure Type Brick,Rock/Stone,Siding
Schools
Elementary Schools Molly Livengood Carter
Middle Schools Wilson
High Schools Northwest
School District Northwest Isd
Others
Virtual Tour https://unbranded.youriguide.com/i8h2f_1432_barbacoa_dr_haslet_tx/







